欢迎来到- 无锡市安能机械设备制造有限公司 的官方网站!
服务热线:0510-8377 2030 加入收藏 联系我们 站点地图
首页 关于安能 资质荣誉 企业文化 公司客户 新闻资讯 产品展示 业绩图库 视频中心 人力资源 在线询盘 联系我们
产品展示
首页 / 产品展示
GLS、LS系列螺旋输送机



概述
  螺旋输送机分为GLS型管式螺旋输送机和LS型U型螺旋输送机,主要用于水平或倾斜角度不大于30度的粉尘、小颗粒状和小块状物料的输送。其结构简单、横截面积小,造价相对其他输送设备较低,操作方便,能多点进料,多点卸料。工艺布置方便,整体密封性能好,可连续输送,广泛应用于冶金、电力、化工、建材、粮食等行业。
结构特点及工作原理
  GLS、LS系列螺旋输送机由壳体、螺旋轴、进出料口及驱动装置组成,连续的输送叶片使物料得以均匀连续的输送,动力的同轴输入,进一步提高了传动效率和传动平稳性。当输送距离超出6米时,可通过吊挂轴承方式进行连接。
  GLS、LS系列螺旋输送机一般采用单向输送,也可实现物料的双向输送,使用环境位-20℃-50℃,物料温度≤200℃,倾斜角度≤30°。
  GLS、LS系列螺旋输送机不宜输送粘性大、易结块的物料,因为这些物料在输送时会粘结在螺旋叶片上,造成物料的堵塞和功率消耗增大,使设备不能正常工作。
主要技术参数
型号/项目 GLS159 GLS219 GLS273 GLS325 GLS377 GLS426 GLS530 GLS630 GLS820
LS150 LS200 LS250 LS300 LS350 LS400 LS500 LS600 LS800
螺旋直径(mm) 130 190 230 280 330 380 480 570 770
节距(mm) 150 200 250 300 350 400 500 600 800
转速(r/min) 120 90 90 75 75 75 60 60 45
生产能力(m3/h) 7.6 11 22 36 54 66 93 160 223
电机功率(kw) 1.5 2.2 2.2 3 4 5.5 5.5 7.5 11
转速(r/min) 90 75 75 60 60 60 45 45 35
生产能力(m3/h) 5.7 9.3 18 29 38 53 70 125 174
电机功率(kw) 1. 1 1.5 2.2 3 4 4 5.5 7.5 11
转速(r/min) 75 60 60 45 45 45 35 35 30
生产能力(m3/h) 5 7.5 15 21 30 40 55 97 149
电机功率(kw) 1. 1 1.5 2.2 2.2 3 3 4 5.5 7.5
转速(r/min) 60 45 45 35 35 35 30 30 20
生产能力(m3/h) 3.8 5.5 11 17 25 32 47 83 99
电机功率(kw) 1. 1 1.5 1.5 2.2 2.2 3 4 5.5 5.5
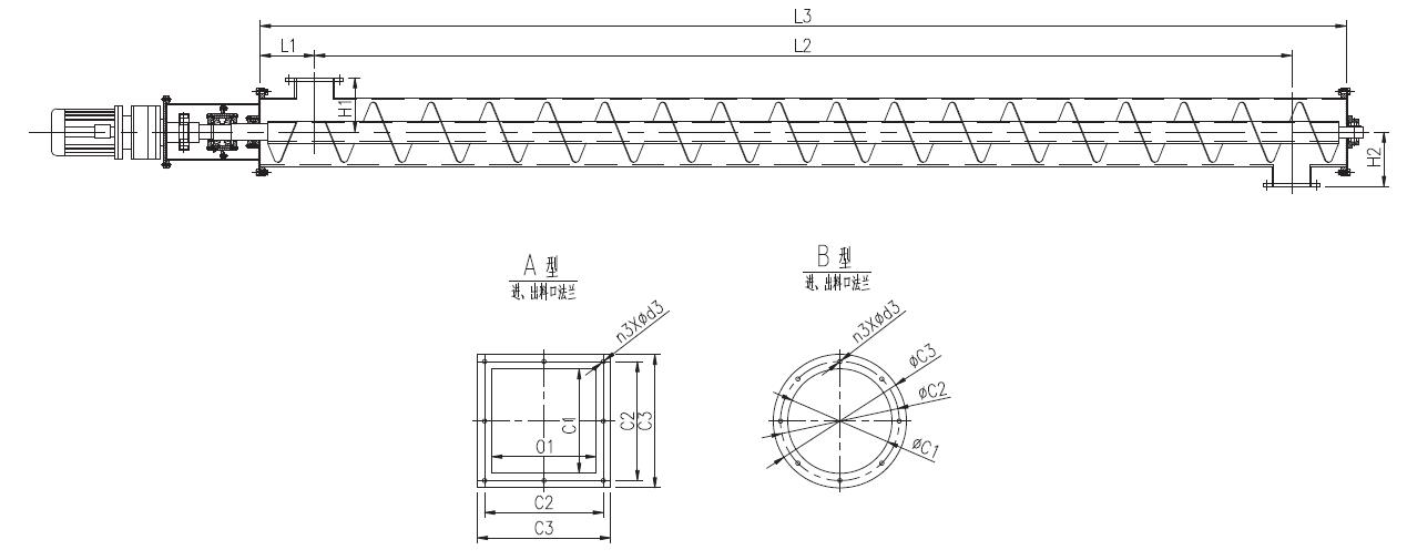
GLS系列螺旋输送机外形示意图


GLS系列螺旋输送机外形尺寸及连接尺寸
项目 /型号 GLS159 GLS219 GLS273 GLS325 GLS377 GLS426 GLS530 GLS630 GLS820
结构 尺寸 L1 200 225 250 300 350 400 450 500 650
L2 根据工艺要求设计确定
L3 根据工艺要求设计确定
H1 150 225 240 250 260 280 340 420 520
H2 150 225 240 250 260 280 340 420 520
进出 料口 C1 159 219 273 325 377 426 530 630 820
C2 209 269 323 375 427 476 580 680 870
C3 259 319 373 425 477 526 630 730 920
n3 6 8 8 12 12 12 16 16 20
d3 14 14 14 14 14 14 18 18 22
注:A型进出料口为方形,B型进出料口为圆形
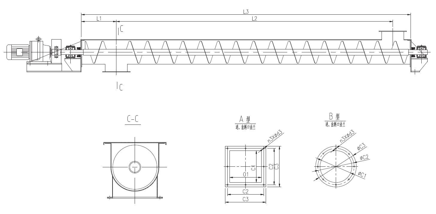
LS系列螺旋输送机外形示意图

LS系列螺旋输送机外形尺寸及连接尺寸
项目/型号 LS150 LS200 LS250 LS300 LS350 LS400 LS500 LS600 LS800



L1 200 225 250 300 350 400 450 500 650
L2 根据工艺要求设计确定
L3 根据工艺要求设计确定
H1 150 225 240 250 260 280 340 420 520
H2 150 225 240 250 260 280 340 420 520



C1 150 200 250 300 350 400 500 600 800
C2 200 250 300 350 400 450 550 650 850
C3 250 300 350 400 450 500 600 700 900
n3 6 8 8 12 12 12 16 16 20
d3 14 14 14 14 14 14 18 18 22
注:A型进出料口为方形,B型进出料口为圆形
设备的运行与维护
GLS、LS系列螺旋输送机釆用同轴直连型动力输入方式,使动力的输入更加高效和简洁,运行平稳可靠,主轴于减速机采用弹性联轴器,减少启动扭力,大大提高了整机的使用寿命。
上一页:FU系列刮板输送机
下一页:GS系列刮板输送机
关于我们新闻动态联系我们网站地图
COPYRIGHT © 2021 无锡市安能机械设备制造有限公司 版权归本公司所有,未经授权
任何其他公司或个人均不允许来复制、抄袭!