欢迎来到- 无锡市安能机械设备制造有限公司 的官方网站!
服务热线:0510-8377 2030 加入收藏 联系我们 站点地图
首页 关于安能 资质荣誉 企业文化 公司客户 新闻资讯 产品展示 业绩图库 视频中心 人力资源 在线询盘 联系我们
产品展示
首页 / 产品展示
三通阀

概述
QSF系列气动三通阀是一种用于粉状、小颗粒状干态物料输送系统中,作为物料输送垂直分路装置,由 单路变双路从而实现物料流向按需要改变,可安装于料仓出料口处、料管间,也可与卸灰阀等配套使用, 广泛应用于冶金、电力、化工、建材、煤炭、粮食、医药等行业。
结构特点及工作原理
QSF系列气动三通阀由壳体、轴承、翻板机构、气缸执行机构装置等组成。物料由上部进料进入壳体, 由翻板机构控制分料,从出料口排出。
QSF系列气动三通阀结构紧凑、结合面密封性好、无泄漏、运行阻力小,操作轻便,且具有带负载启动 能力以及过载保护功能。
也可根据设计要求把气缸执行结构改为电液动执行结构。
主要技术参数
型号 项目 QSF150 QSF200 QSF250 QSF300 QSF350 QSF400 QSF500
适用物料 粉状、 小颗粒状干态物料
适用温度(°c) 150
气缸缸径(皿1) 40 40 50 80 80 80 80
气缸行程(mm) 100 100 100 150 150 150 200
气源压力(MPa) 0. 4-0. 7
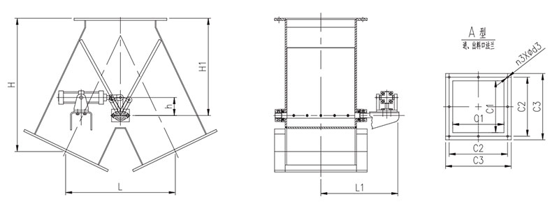
外形示意图
外形尺寸及连接尺寸
项目 型号 QSF150 QSF200 QSF250 QSF300 QSF350 QSF400 QSF500
H 400 450 500 600 650 700 850
结构 尺寸 H1 260 310 335 360 370 390 420
h 80 100 100 100 100 100 100
L 346 404 454 504 550 615 675
L1 195 225 350 450 480 510 625
Cl 150 200 250 300 350 400 500
进出 料口 C2 200 250 300 350 400 450 550
C3 250 300 350 400 450 500 600
n3 8 8 12 12 12 16 20
d3 14 14 14 14 14 14 18
注:A型进出料口为方形,B型进出料口为圆形
上一页:插板阀
下一页:双层翻板阀
关于我们新闻动态联系我们网站地图
COPYRIGHT © 2021 无锡市安能机械设备制造有限公司 版权归本公司所有,未经授权
任何其他公司或个人均不允许来复制、抄袭!