|
概述
GS系列刮板输送机是输送粉状、小颗粒和小块状干态物料的连续输送机械,可以水平、倾斜布置。该设备结构简单、运行平稳可靠、输送距离长、密封性能好、磨损小、噪音低,广泛应用于冶金、电力、化工、矿山、建材、粮食等行业。
结构特点及工作原理
GS系列刮板输送机由机头部件、中间槽体、机尾部件、刮板输送链、驱动装置、安装枕粱组成。全封闭杋壳,设备运行时无物料外泄;输送链采用优质合金模锻件经热处理,强度大,耐磨损;设备的进岀料口及输送长度可根据工艺要求灵活设计布置。
物料经设备进料口均匀的进入槽体底部,由从机尾向机头方向作封闭连续运行的承载刮板输送链将物料从进料口处连续均匀的输送至岀料口排岀。可实现多点进料、多点卸料。机尾设置丝杆调节装置来调节输送链的松紧度,保证其在运行中始终保持适度张紧状态,使设备处于稳定的运行状态。
GS系列刮板输送机适宜输送磨琢性小、堆积比重小的粉状、小颗粒状干态物料,如炼钢粉尘、袋式除尘器出灰等。当输送磨琢性大、堆积密度大地粉状、小颗粒及小块状干态物料时,可选用我公司生产的HS系列刮板输送机。
主要技术参数
|
型号/项目
|
GS200
|
GS250
|
GS310
|
GS400
|
GS430
|
GS450
|
GS500
|
|
槽宽(mm)
|
200
|
250
|
310
|
400
|
430
|
450
|
500
|
|
输送能力(m³/h)
|
2-5
|
4-8
|
6-12
|
8-16
|
10-20
|
12-22
|
15-25
|
|
链速(m/min)
|
2.4-5
|
2.4-5
|
2.4-5
|
2.4-5
|
2. 4-5
|
2.4-5
|
2. 4-5
|
|
链条节距(mm)
|
150
|
150
|
200
|
200
|
200
|
200
|
200
|
|
输送距离(m)
|
6-80
|
6-80
|
6-80
|
6-80
|
6-80
|
6-80
|
6-80
|
|
输送斜度(° )
|
≤15
|
|
电机功率(KW)
|
1. 5-5. 5
|
1. 5-7. 5
|
2. 2-11
|
3-11
|
3-11
|
3-15
|
3-17. 5
|
|
驱动装置安装型式
|
左、 右装,背装式
|
|
传动型式
|
链传动
|
|
适用粒度(mm)
|
<3
|
<5
|
<8
|
<10
|
<10
|
<10
|
<10
|
|
适用湿度(%)
|
≤5
|
|
适用温度(℃)
|
≤150
|
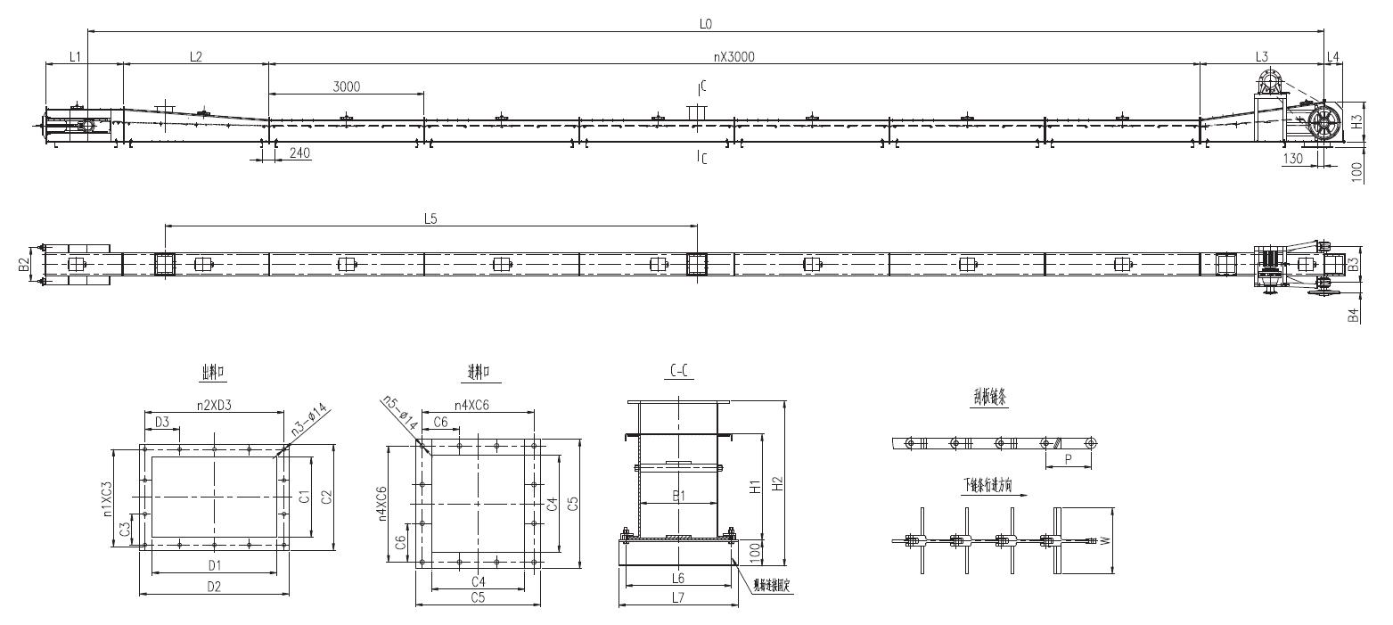
外形示意图
外形尺寸及连接尺寸
|
项目 / 型号
|
GS200
|
GS250
|
GS310
|
GS400
|
GS430
|
GS450
|
GS500
|
结
构
尺
寸
|
L1
|
1220
|
1220
|
1500
|
1500
|
1500
|
1500
|
1500
|
|
L2
|
调整段长度根据实际要求
|
|
L3
|
2400
|
2400
|
2400
|
2400
|
2400
|
2400
|
2400
|
|
L4
|
310
|
310
|
360
|
360
|
360
|
360
|
360
|
|
L5
|
根据工艺要求设计确定
|
|
H1
|
410
|
410
|
410
|
410
|
410
|
410
|
410
|
|
H2
|
≥650
|
≥650
|
≥700
|
≥700
|
≥700
|
≥700
|
≥700
|
|
H3
|
600
|
600
|
730
|
730
|
730
|
730
|
730
|
|
B1
|
200
|
250
|
310
|
400
|
430
|
450
|
500
|
|
B2
|
480
|
530
|
630
|
720
|
750
|
770
|
820
|
|
B3
|
520
|
570
|
670
|
760
|
790
|
810
|
860
|
|
B4
|
150
|
150
|
185
|
185
|
185
|
185
|
185
|
|
n
|
根据工艺要求设计确定
|
|
P
|
150
|
150
|
200
|
200
|
200
|
200
|
200
|
|
W
|
170
|
220
|
280
|
370
|
400
|
420
|
480
|
进
料
口
|
C4
|
200
|
250
|
310
|
400
|
430
|
450
|
500
|
|
C5
|
300
|
350
|
410
|
500
|
530
|
550
|
600
|
|
C6
|
125
|
150
|
120
|
150
|
160
|
125
|
137.5
|
|
n4
|
2
|
2
|
3
|
3
|
3
|
4
|
4
|
|
n5
|
8
|
8
|
12
|
12
|
12
|
16
|
16
|
出
料
口
|
Cl
|
200
|
250
|
310
|
400
|
430
|
450
|
500
|
|
C2
|
300
|
350
|
410
|
500
|
530
|
550
|
600
|
|
C3
|
130
|
100
|
120
|
150
|
160
|
125
|
137.5
|
|
nl
|
2
|
3
|
3
|
3
|
3
|
4
|
4
|
|
D1
|
400
|
400
|
500
|
500
|
500
|
500
|
500
|
|
D2
|
500
|
500
|
600
|
600
|
600
|
600
|
600
|
|
D3
|
115
|
115
|
140
|
140
|
140
|
140
|
140
|
|
n2
|
4
|
4
|
4
|
4
|
4
|
4
|
4
|
|
n3
|
12
|
12
|
14
|
14
|
14
|
14
|
14
|
安装
尺寸
|
L6
|
330
|
380
|
410
|
500
|
530
|
550
|
600
|
|
L7
|
380
|
430
|
480
|
570
|
600
|
620
|
670
|
设备的运行与维护
GS系列刮板输送机具有良好的机械性能,优良的工艺设计使产品可以长时间无故障运行,
根据不同工况而进行的相关设计,使设备的性能更加完 美,寿命更加延长,维护及维修的频次降至低。 |