欢迎来到- 无锡市安能机械设备制造有限公司 的官方网站!
服务热线:0510-8377 2030 加入收藏 联系我们 站点地图
首页 关于安能 资质荣誉 企业文化 公司客户 新闻资讯 产品展示 业绩图库 视频中心 人力资源 在线询盘 联系我们
产品展示
首页 / 产品展示
HS系列刮板输送机



概述
  HS系列刮板输送机是输送粉状、小颗粒和小块状干态物料的连续输送机械设备,可以水平、倾斜布置。该设备结构简单、运行平稳可靠、输送距离长、密封性能好、磨损小、噪音低,是冶金、电力、化工、矿山、建材、粮食等行业的一种理想的新型输送设备。
结构特点及工作原理
  HS系列刮板输送机由机头部件、中间槽体、机尾部件、刮板输送链、驱动装置、安装枕粱组成。全封闭机壳,设备运行时无物料外泄;输送链釆用优质耐磨板链式,经热处理,强度大,耐磨损;设备的进料口及输送长度可根据工艺要求灵活设计布置。

  物料经设备进料口均匀的进入槽体底部,由从机尾向机头方向作封闭连续运行的承载刮板输送链将物料从进料口处连续均匀的输送至出料口排出。可实现多点进料、多点卸料。机尾设置丝杆调节装置来调节输送链的松紧度,保证其在运行中始终保持适度张紧状态,使设备处于稳定的运行状态。

  HS系列刮板输送机适宜输送磨琢性大、堆积密度大地粉状、小颗粒及小块状干态物料。
主要技术参数
型号/项目 HS200 HS250 HS310 HS400 HS430 HS450 HS500
槽宽(mm) 200 250 310 400 430 450 500
输送能力(m³/h) 2-5 4-8 6-12 8-16 10-20 12-22 15-25
链速(m/min) 2.4-5 2.4-5 2.4-5 2.4-5 2.4-5 2.4-5 2.4-5
链条节距(mm) 150 150 200 200 200 200 200
输送距离(m) 6-80 6-80 6-80 6-80 6-80 6-80 6-80
输送斜度(°) ≤15
电机功率(KW) 1. 5-5. 5 1. 5-7. 5 2. 2-11 3-11 3-11 3-15 3-17. 5
驱动装置安装型式 左、 右装,背装式
传动型式 链传动
适用粒度(mm) <5 <8 <10 <12 <12 <15 <15
适用湿度(%) ≤5
适用温度(℃) ≤150
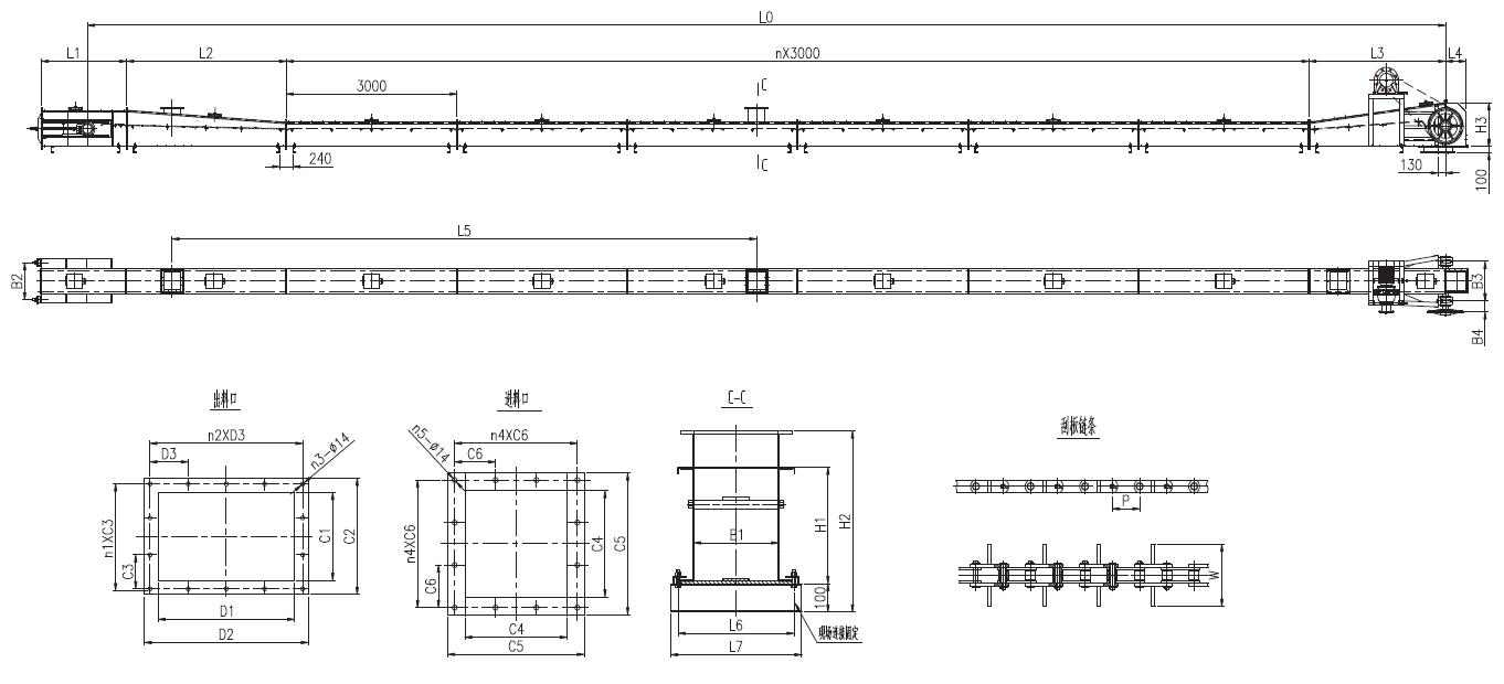
外形示意图
外形尺寸及连接尺寸
项目 型号 HS200 HS250 HS310 HS400 HS430 HS450 HS500



L1 1220 1220 1500 1500 1500 1500 1500
L2 调整段长度根据实际要求
L3 2400 2400 2400 2400 2400 2400 2400
L4 310 310 360 360 360 360 360
L5 根据工艺要求设计确定
H1 410 410 410 410 410 410 410
H2 ≥650 ≥650 ≥700 ≥700 ≥700 ≥700 ≥700
H3 600 600 730 730 730 730 730
B1 200 250 310 400 430 450 500
B2 480 530 630 720 750 770 820
B3 520 570 670 760 790 810 860
B4 150 150 185 185 185 185 185
n 根据工艺要求设计确定
P 152. 4 152.4 200 200 200 200 200
W 170 220 280 370 400 420 480


C4 200 250 310 400 430 450 500
C5 300 350 410 500 530 550 600
C6 125 150 120 150 160 125 137.5
n4 2 2 3 3 3 4 4
n5 8 8 12 12 12 16 16


C1 200 250 310 400 430 450 500
C2 300 350 410 500 530 550 600
C3 130 100 120 150 160 125 137. 5
nl 2 3 3 3 3 4 4
D1 400 400 500 500 500 500 500
D2 500 500 600 600 600 600 600
D3 115 115 140 140 140 140 140
n2 4 4 4 4 4 4 4
n3 12 12 14 14 14 14 14
安装
尺寸
L6 330 380 410 500 530 550 600
L7 380 430 480 570 600 620 670
设备的运行与维护
  HS系列刮板输送机具有良好的机械性能,优良的工艺设计使产品可以长时间无故障运行,根据不况而进行的相关设计,使设备的性能更加完 美,寿命更加延长,维护及维修的频次降至低。
上一页:HLS系列水冷式螺旋冷灰机
下一页:MZ系列刮板输送机
关于我们新闻动态联系我们网站地图
COPYRIGHT © 2021 无锡市安能机械设备制造有限公司 版权归本公司所有,未经授权
任何其他公司或个人均不允许来复制、抄袭!