欢迎来到- 无锡市安能机械设备制造有限公司 的官方网站!
服务热线:0510-8377 2030 加入收藏 联系我们 站点地图
首页 关于安能 资质荣誉 企业文化 公司客户 新闻资讯 产品展示 业绩图库 视频中心 人力资源 在线询盘 联系我们
产品展示
首页 / 产品展示
FU系列刮板输送机


概述
  FU系列刮板输送机是输送粉状、粒状物料的连续输送机械产品,其使用性能优于螺旋输送机及其它埋刮板输送机,可以水平、倾斜布置。该设备结构简单、运行平稳可靠、输送距离长、密封性能好、磨损小、噪音低,是冶金、电力、化工、矿山、建材、粮食等行业的一种理想的新型输送设备。
结构特点及工作原理
  FU系列刮板输送机由机头部件、中间槽体、机尾部件、刮板输送链、驱动裝置、安装枕粱组成。全闭机壳,设备运行时无物料外泄;输送链采用优质滚子链;单链布置形式,设备的进出料口及输送长度可根据工艺要求灵活设计布置。

  物料经设备进料口均匀的进入槽体底部,由从机尾向机头方向作封闭连续运行的承载刮板输送链将物料从进料口处连续均匀的输送至出料口排出。实现多点进料、多点卸料。机尾设置丝杆调节装置来调节输送链的松紧度,保持其在运行中始终保持适度张紧状态,使设备处于稳定的运行状态。
主要技术参数
型号/项目 FU200 FU270 FU350 FU410 FU500 FU600
槽宽(mm) 200 270 350 410 500 600
输送能力(m³/h) 10-30 20-60 35-100 50-130 70-200 100-270
链速(m/min) 10-30 10-30 12-30 12-25 12-25 12-25
链条节距(mm) 152. 4 152. 4 152.4 200 200 200
输送距离(m) 8-50 8-50 8-50 8-50 10-40 10-40
输送斜度(° ) ≤15
电机功率(KW) 2. 2-7. 5 3-15 4-22 4-30 5. 5-37 7.5-45
驱动装置安装型式 左、右装,背装式
传动型式 链传动
适用粒度(mm) <5 <7 <9 <11 <13 <15
适用湿度(%) ≤5
适用温度(℃) ≤150
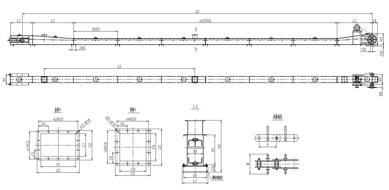
外形示意图
外形尺寸及连接尺寸
项目/型号 FU200 FU270 FU350 FU410 FU500 FU600



L1 1220 1220 1500 1500 1500 1500
L2 调整段长度根据实际要求
L3 2400 2400 2400 2400 2400 2400
L4 310 310 360 360 360 360
L5 根据工艺要求设计确定
H1 450 500 610 850 1000 1200
H2 ≥650 ≥700 ≥800 ≥1000 ≥1200 ≥1400
H3 600 740 740 930 1100 1350
B1 200 270 350 410 500 600
B2 480 550 670 720 810 910
B3 520 590 710 760 870 970
B4 150 150 185 185 185 185
n 根据工艺要求设计确定
P 152.4 152.4 200 200 200 200
W 170 240 315 375 465 565


C4 200 270 350 410 500 600
C5 300 370 450 510 600 700
C6 125 160 135 155 137.5 162.5
n4 2 2 3 3 4 4
n5 8 8 12 12 16 16


C1 200 250 310 400 430 450
C2 300 350 410 500 530 550
C3 130 100 120 150 160 125
nl 2 3 3 3 3 4
D1 400 400 500 500 500 500
D2 500 500 600 600 600 600
D3 115 115 140 140 140 140
n2 4 4 4 4 4 4
n3 12 12 14 14 14 14
安装
尺寸
L6 330 400 480 540 530 630
L7 380 440 520 580 670 730
设备的运行与维护
  FU系列刮板输送机具有良好的机械性能,优良的工艺设计使产品可以长时间无故障运行,根据不同工况而进行的相关设计,使设备的性能更加完 美,寿命更加延长,维护及维修的频次降至低极。
上一页:DT系列斗式提升机
下一页:GLS、LS系列螺旋输送机
关于我们新闻动态联系我们网站地图
COPYRIGHT © 2021 无锡市安能机械设备制造有限公司 版权归本公司所有,未经授权
任何其他公司或个人均不允许来复制、抄袭!