欢迎来到-
无锡市安能机械设备制造有限公司
的官方网站!
服务热线:
0510-8377 2030
加入收藏
联系我们
站点地图
首页
关于安能
公司简介
资质荣誉
企业文化
公司客户
新闻资讯
产品资讯
行业动态
公司新闻
产品展示
除尘输灰系统
垃圾焚烧发电厂输灰系统
输送机械系列
阀门系列
其他产品
业绩图库
视频中心
联系我们
人力资源
在线询盘
联系我们
咨询
搜索
首页
关于安能
资质荣誉
企业文化
公司客户
新闻资讯
产品展示
业绩图库
视频中心
人力资源
在线询盘
联系我们
产品展示
首页 / 产品展示
储灰装置
概述
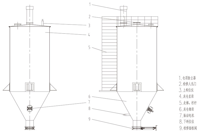
储灰装置是输灰系统中储存灰的一种装置,由储灰斗、灰斗支架、仓顶除尘器、上下料位仪、振动电 机(或空气炮)、检修插板阀、检修人孔门等组成。 我公司可根据用户提供的设计要求和现场实际情况,协助设计选型(含支架),并提供详细的设计方案。
外形示意图
◀ 上一篇:补偿器
▶ 下一篇:吸引装置
关于安能
公司简介
资质荣誉
企业文化
客户业绩
视频中心
企业新闻
产品资讯
行业动态
公司新闻
产品展示
联系安能
人力资源
客户反馈
联系我们
扫描二维码关注安能